https://gfktrailersales.com
Call for Price
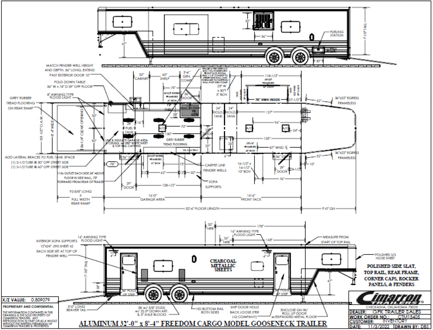
Stock #:
CM15405
